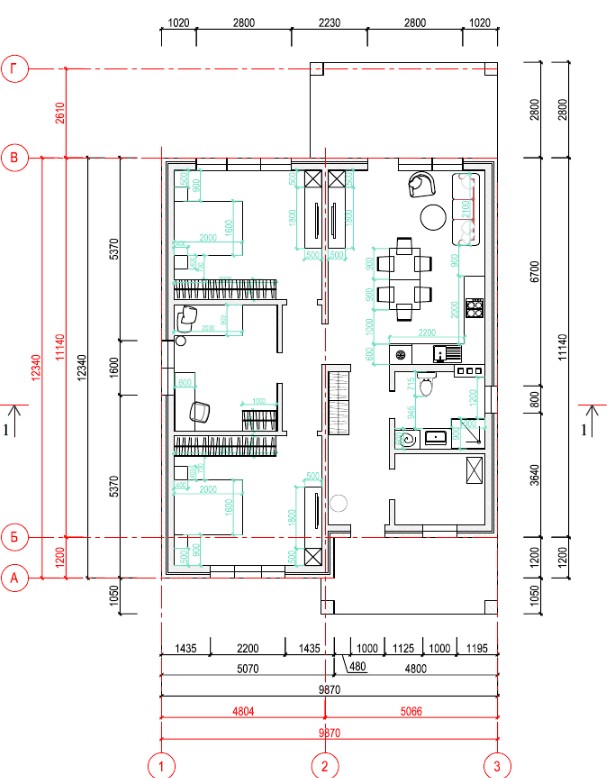
Начало строительства мини коттеджного поселка "Приморский" рядом с потрясающим природным ракушечным пляжем на берегу Черного моря! Расположен между новым ЖК "Просторы Крымв" и береговой линией, от пляжа 700м. Заложено строительство пяти таких домов, на участках правильной формы по 8 соток. Будут сдаваться в отделке WHITE BOX и пригодны для проживания сразу. Забор по периметру, бетонирование двора, подсветка фасада. Центральные коммуникации. ЦЕНА 13 800 000 рублей с участком.
Нажимая кнопку заказать вы даёте согласие на обработку ваших персональных данных.





.jpg)







.jpg)
