Хотите свой дом с участком у моря по цене квартиры?
Открыта продажа домов в коттеджном поселке "Приморский"! в поселке Приморский, г. Феодосия.
Центральные коммуникации, активно развивающаяся инфраструктура. Рядом строится ЖК "Просторы Крыма", с аквапарком, школами, детскими садами и всем необходимым для комфортной жизни на морском побережье. Наш коттеджный поселок строится между Просторами Крыма и береговой линией. В 700 метрах от ракушечного пляжа, открытого Черного моря и в 40 минутах езды от Крымского моста. Экологически чистое место, отсутствие каких-либо производств и сточных вод в море.
Заложено строительство коттеджей полезной площадью от 75-ти м2 до 120-ти м2. Все строительство согласно СНИП и ГОСТ.
Так же вы можете заказать строительство не типовых домов на свободных участках, на выгодных условиях без рисков и переплат!
РАКУШЕЧНЫЙ ЧИСТЕЙШИЙ ПЛЯЖ РЯДОМ:

ЛОКАЦИЯ НА КАРТЕ:

ПЛАН ЗАСТРОЙКИ:

ЧТО ВХОДИТ В ПРЕДЛОЖЕНИЕ:
ВИД И ПЛАНИРОВКИ ДОМОВ В КП "ПРИМОРСКИЙ":

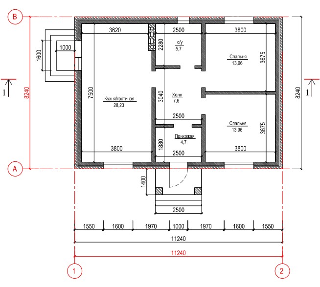
Планировка:

2. Дом одноэтажный полезной площадью 93м2, всего 3 дома, на участке 8 соток. Стоимость 12 400 000р.

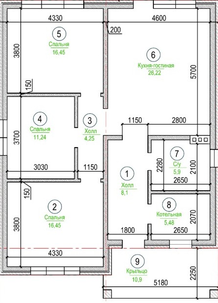
Планировка:

3. Дом двухэтажный полезной площадью 120м2, всего 5 домов, на участке 6,4 сотки. Стоимость 12 850 000р

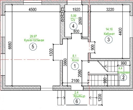
Планировка 1-й этаж:
Планировка 2-й этаж:

Как мы строим наши дома:
ФУНДАМЕНТ ленточный армированный, заглубление 90см, сысота цоколя 60 см

СТЕНЫ из блока,утеплителя и керамического кирпича


КРОВЛЯ утеплена, дополнительное усиленное крепление к армопоясу, антипожарное защитное покрытие деревянных частей

предчистовая ОТДЕЛКА WHITE BOX: электрика, отопление, теплый пол, подшитые потолки, стяжка, гипсовая штукатурка.

БЛАГОУСТРОЙСТВО территории: забор, бетонирование площадок и дорожек, подсветка.


Готовность коттеджного поселка на 15 января 2026 года 95% :






Нажимая кнопку заказать вы даёте согласие на обработку ваших персональных данных.
